StoodilyDoodleyO

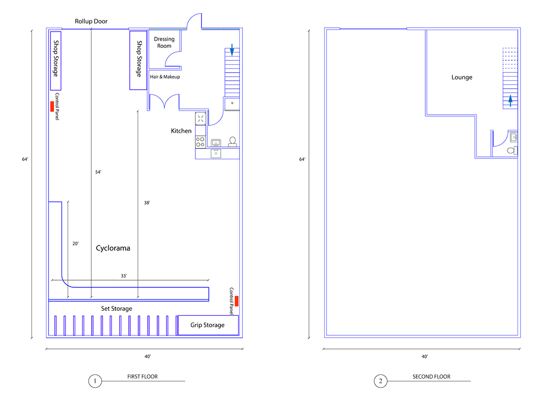
18' high rollup for box truck direct entry into studio.

Set Shop build & fabrication capabilities.

33' wide x 20' deep x 16' high Cyclorama

'THE TABLE' built in 1913. Mobile and removable if desired.

One of Two, 200amp, Control Panels. Safe for hard-drives & Devices.

Hair & Makeup Station

Dressing Room

Lounge with three adjustable standing desks.

View from the Crows Nest.

Studio
Location
Equipment
Calendar
Parking
Rates
 
FAQ's
Test
About
Contact
markiedoodle